Ambitious Class CTV

Introducing chartwell ambitious

The Chartwell Ambitious Class CTV is a pioneering crew transfer vessel that redefines the formula for green offshore wind support.

Developed over in excess of ten years of data and experience in offshore wind vessel design, alongside extensive dialogue and collaboration with wind farm owners and turbine manufacturers, the Chartwell Ambitious Class responds directly to the needs of the end user.

 

Length
25.1m (82 ft)
Beam
8.65m (28.5ft)
Propulsion
CPP / FPP / IPS / WJ
Max Speed
30 knots
NO. of Techs
24

The vessel hits a sweet spot in size and capability that has been achieved by the most effective vessels currently operating in the offshore wind market.

The Chartwell Ambitious Class is available with conventional diesel and hybrid diesel/electric propulsion systems.

The Ambitious Class eCTV is propelled by a controllable pitch propeller system. The CPP system is fitted within both hulls, with each having a twin power input. Each propulsion room houses 2 x 500kW Danfoss Electric motors running at 2100RPM. This means the Ambitious Class eCTV has the capability to operate silently, with zero emissions, as an electric boat at speeds in excess of 25knots.

 

eCTV system characteristics:

The vessel is sized to be capable and effective in the challenging conditions in the ever growing offshore wind market. Surpassing the capability that has been achieved by the most effective vessels currently operating in the offshore wind market. It builds on lessons learnt supporting European projects throughout construction and operation, while also meeting new requirements emerging in markets such as the USA and Taiwan.

The vessel can be delivered in a range of configurations to suit specific operators requirements including hybrid zero emission.

  • Silent (no engine noise)
  • Zero emission when operating electric only
  • Up to 1000L fuel burn reduction over 12 hours operation
  • Up to 2.9T CO2 reduction over 12 hours operation
  • up to 87% reduction in Nox emissions over 12 hours operation (Tier 3)
  • Up to 8-hour reduction in engine use over 12 hours Operation

The Chartwell BREVITY eCTV is a pioneering crew transfer vessel that refines the formula for offshore wind support. Offering zero emission operations and significant reductions in total fuel consumption.

Once at the offshore wind turbine or offshore substructure, the Ambitious Class is capable of delivering up to 19T bollard push. Coupled with the advanced hull form and superior bow height this will allow the vessel to transfer comfortably in seas in excess of 1.75m HS.

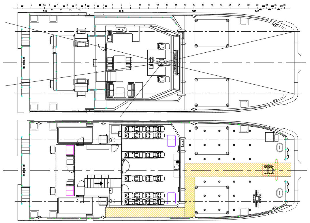
Onboard, the vessel has a large clear saloon suitable for the carriage of 24 industrial personal.. The vessel also benefits from large storage space and technician wet room. 

The main deck forward has a working area of 70m2 with provision for the fitment of two 10ft deck containers. The Ambitious Class boasts the best wheelhouse visibility on the market, with full foredeck visibility and clear view to vessel bow fender with or without deck containers fitted onboard.

The Ambitious Class hull design has been independently validated using the latest computational fluid dynamics (CFD) modelling methods, coupled with thorough 1:12 scale model tank testing. Combined, these processes constitute the most rigorous and scientific testing approach for any offshore wind CTV design to date.

Conducted by Seaspeed Marine Consulting, these tests have confirmed the seakeeping performance, stability and manoeuvrability of the vessel design.

“During model testing, the Chartwell 24 hull exhibited high standards of seakeeping and manoeuvrability throughout a wide range of simulated sea states. Importantly, the freeboard and motion of the vessel were such that no wet-deck slamming was noted within the range of tests undertaken. This is a significant operational advantage when compared to other craft with lower freeboard, which may perhaps otherwise indicate similar rms motion characteristics, but would in reality be limited by slamming occurrence.”

Stephen Phillips
Managing Director, Seaspeed Marine Consulting